Bliźniak - Żółwin

Aktualizacja metrażu po Inwentaryzacji 

GALERIA

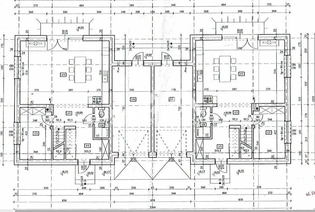
rzuty z projektu

PIĘTRO

NR

 POMIESZCZENIE

POWIERZCHNIA

2/1

KORYTARZ

6,34

2/2

POKÓJ

10,83

2/3

ŁAZIENKA

6,11

2/4

ŁAZIENKA

4,06

2/5

GARDEROBA

3,28

2/6

POKÓJ

14,60

2/7

POM. GOSP.

3,84

2/8

POKÓJ

10,52

 

RAZEM

59,58

 

PARTER

NR

 POMIESZCZENIE

POWIERZCHNIA

1/1

WIATROŁAP

5,10

1/2

POKÓJ

10,47

1/3

HOL

7,16

1/4

ŁAZIENKA

2,85

1/5

SALON Z KUCHNIĄ

37,27

1/6

GARAŻ

21,99

1/7

KLATKA SCHODOWA

4,42

 

RAZEM

89,26

 

Link do strony dewelopera: Inwestycje - Żółwin

Lokal 1: Karta Lokalu 1

Lokal 2: Karta Lokalu 2

Skontaktuj się ze mną aby uzyskać więcej informacji na temat przedstawionej nieruchomości i umówić się na spotkanie

tel. 668 423 079

lokalizacja

To miejsce, w którym natura spotyka się z wygodą. 

 

Nieruchomość usytuowana jest w spokojnym, zielonym otoczeniu, w sąsiedztwie lasu i terenów rekreacyjnych. To doskonała propozycja dla osób, które cenią ciszę oraz bliskość natury, a jednocześnie oczekują wygodnego dostępu do miasta zarówno własnym samochodem, jak i transportem publicznym.

 

  • Przystanek autobusowy - 100 m

  • Stacja WKD Podkowa Leśna - 4,5 km (możliwość dojazdu autobusem)

  • Wjazd na trasę S8 - 8 km

 

Na wyciągnięcie ręki znajdziesz również obiekty takie jak:

 

  • Sklep osiedlowy - 3 km

  • Supermarket - 6 km

  • Przedszkole - 1 km

  • Szkoła - 2,7 km 

  • Kościół - 6 km

 

(Podane odległości uwzględniają faktyczną trasę dojazdu, a nie odległość w linii prostej)

Szukasz domu, który połączy ciszę i spokój natury z wygodą codziennego życia? Ten bliźniak w Żółwinie to miejsce, w którym naprawdę można odetchnąć.

 

Budynek został zaprojektowany w taki sposób, aby lokale połączone były ze sobą jedynie ścianą garażową dzięki czemu mieszkańcy mogą cieszyć się maksymalnym komfortem i prywatnością. Każdy lokal ma powierzchnię około 148 m² w skład, której wchodzi przestronny salon z wyjściem na taras i ogród, otwarta kuchnia, 5 pokoi, 3 łazienki, garderoba i pomieszczenie gospodarcze. Przestrzeń ta daje ogromne możliwości aranżacyjne. Dodatkowym atutem jest garaż z wygodnym przejściem z wiatrołapu (zmiana w odniesieniu do przedstawionych rzutów) oraz szeroki, wyłożony kostką podjazd z bramą na pilota.

 

Na działce o powierzchni powyżej 500 m² znajdziesz miejsce na rodzinne spotkania, strefę zabaw dla dzieci albo własny zielony azyl. Dom jest w stanie deweloperskim – to oznacza, że możesz urządzić go dokładnie tak, jak sobie wymarzysz.

 

Budynek wykonany został z wysokiej jakości materiałów i wyposażony w nowoczesne rozwiązania – pompę ciepła, rekuperację, fotowoltaikę, ogrzewanie podłogowe oraz światłowód. To gwarancja nie tylko wygody, ale też oszczędności i ekologicznego stylu życia.

 

To miejsce, w którym codzienność staje się łatwiejsza, a każdy dzień przynosi więcej spokoju i przestrzeni.

 

Być może to właśnie tutaj czeka Twój nowy rozdział.

 

cena: 1 120 000 zł

Obecnie dostępne są obie połówki prezentowanego bliźniaka.

W przypadku zakupu tej nieruchomości kupujący zwolniony jest z opłaty podatku PCC.

Treść niniejszego ogłoszenia nie stanowi oferty handlowej w rozumieniu Kodeksu Cywilnego. 

Ma ono jedynie charakter informacyjny.

opis

 

POWIERZCHNIA  

  • 527 
  • 566 m²

OGRODZENIE

panele 3D + płot betonowy

DOJAZD

utwardzony (asfalt)                          

MEDIA

prąd,

woda,

światłowód

 

* Dwie różne powierzchnie działek wynikają z dwóch sąsiadujących ze sobą lokali. Każdy z nich jest przedmiotem ogłoszenia.  

 

ROK BUDOWY

2025

MATERIAŁY

pustak ceramiczny                                  

OKNA

 plastikowe

POKRYCIE DACHU

dachówka

PODJAZD

kostka

 

szczegóły działki  

szczegóły budynku  

 

POWIERZCHNIA

 około 148  m²

LICZBA POKOI

 5

RODZAJ ZABUDOWY

 bliźniak

STAN WYKOŃCZENIA

 deweloperski

RYNEK

 pierwotny

CZYNSZ

 brak

OGRZEWANIE

 podłogowe dla wszystkich pomieszczeń

 pompa ciepła z zasobnikiem c.w.u

MIEJSCE PARKINGOWE

 garaż w bryle budynku z przejściem do domu

GOSPODAROWANIE  

NIECZYSTOŚCIAMI

 szambo

UJĘCIE WODY

 doprowadzona woda miejska

INNE UDOGODNIENIA

 rekuperacja,

 panele fotowoltaiczne,

 możliwość wstawienia kominka,

 brama wjazdowa z napędem,

 strych użytkowy

 

Dane podstawowe

Bliźniak w Żółwinie

Szanowni Państwo,

 

Firma Paulina Gertner-Judka Nowe Progi pobiera prowizję wyłącznie od strony, którą reprezentuje i z którą zawiera umowę pośrednictwa.

 

  • W przypadku sprzedaży nieruchomości prowizję opłaca sprzedający.

  • Wyjątek stanowi sytuacja, gdy kupujący jest już klientem poszukującym naszej firmy i w ramach zawartej wcześniej umowy to właśnie jemu została zaoferowana dana nieruchomość.

 

W pozostałych przypadkach pośrednik działa w imieniu sprzedającego, a kupujący, który nie jest klientem firmy, nie ponosi żadnych kosztów związanych z prowizją.